Продается 2-х комн. новостройка, , 4/18 эт
Обзор№ - 6246
| Стоимость | 12 705 546 |
|---|---|
| Название ЖК | Парус Кортен |
| Год постройки | 2024 |
| Жилая площадь | 31.99 |
| Площадь кухни, кв.м. | 24.48 |
| Этаж | 4 |
| Этажность | 18 |
| Комнат в квартире | 2 |
| Ремонт | Черновая отделка |
| Материал стен | кирпично-монолитный |
Адрес
| Населенный пункт | Ижевск |
|---|---|
| Улица | улица Пушкинская |
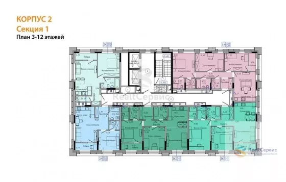
Квартира: 2 к 79,38 кв.м., 4 этаж в комплексе Парус Кортен, 2 очередь, корп.2, сдача: 2кв. , этажей: 18, адрес Ижевск г., Пушкинская ул., , Застройщик: UDS.
Жилой комплекс не просто близок к центру Ижевска, он является его воплощением и входит в масштабный проект комплексного развития центральной части города - территории CITY, и является продолжением бизнес-сектора района — жилого дома и делового центра.
Для облицовки фасада будет применяться кортеновская сталь. Эффектное покрытие медно-коричневого цвета традиционно использовалось в судостроении и промышленном строительстве. И сегодня является трендом современной архитектуры — используется в авторских проектах в Европе и Москве.
Многоуровневая система безопасности и огороженная территория. Просторная придомовая территория. Подземный паркинг с автоматизированным контролем въезда.
Все квартиры с просторными кухнями-гостиными и большими окнами с увеличенным остеклением. Уютные лоджии в каждой квартире. Представлены планировочные решения с теплыми лоджиями. Специальные вентилируемые помещения постирочных комнат.

















