Продается 2-х комн. новостройка, , 19/24 эт
Обзор№ - 11842
| Стоимость | 7 093 040 |
|---|---|
| Название ЖК | MatrЁshka city |
| Год постройки | 2024 |
| Жилая площадь | 23.2 |
| Площадь кухни, кв.м. | 23.1 |
| Этаж | 19 |
| Этажность | 24 |
| Комнат в квартире | 2 |
| Ремонт | Черновая отделка |
| Материал стен | кирпично-монолитный |
Адрес
| Населенный пункт | Ижевск |
|---|---|
| Улица | проспект Конструктора М.Т. Калашникова |
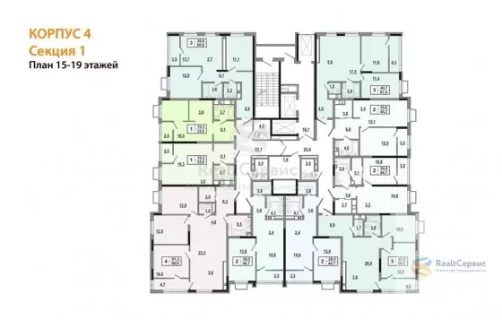
Квартира: 2 к 61,40 кв.м., 19 этаж в комплексе MatrЁshka city, 2 очередь, корп.4, сдача: 2кв. , этажей: 24, адрес Ижевск г., Молодежная ул., , Застройщик: UDS.
Жилой комплекс объединяет 5 домов разной этажности с яркими фасадами, необычным стилобатом и дизайнерскими холлами.
Комплекс расположен в Устиновском районе и может называться «город в городе». Владельцы квартир получают все, что нужно для комфортной жизни, не покидая территории жилого комплекса: магазины и кафе, тренажерные залы, детские игровые площадки и благоустроенная придомовая территория, рядом находятся детские сады и школы. Для автомобилистов предусмотрен подземный паркинг и гостевые наземные парковки.
Мы повторили все преимущества остальных домов: панорамный лифт с видом на лес, просторные холлы с высокими потолками, кладовые, паркинг. Для животных мы оборудовали комнату, где можно помыть лапы после прогулки.
Эргономичные планировки классического типа и евро формата выверены до квадратного метра. Для вещей, сезонных заготовок и спортивного инвентаря размещены кладовые на этажах и в цоколе, куда можно спуститься на лифте.

















