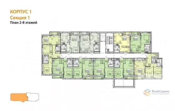
Продается 2-х комн. новостройка, , 4/17 эт
Обзор№ - 6909
| Стоимость | 3 732 347 |
|---|---|
| Название ЖК | Тетрис |
| Год постройки | 2024 |
| Жилая площадь | 24.3 |
| Площадь кухни, кв.м. | 4.5 |
| Этаж | 4 |
| Этажность | 17 |
| Комнат в квартире | 2 |
| Ремонт | Черновая отделка |
| Материал стен | кирпично-монолитный |
Адрес
| Населенный пункт | Ижевск |
|---|---|
| Улица | улица Ленинградская |
Квартира: 2 к 39,50 кв.м., 4 этаж в комплексе Тетрис, 1 очередь, корп.1, сдача: 4кв. , этажей: 17, адрес Ижевск г., Ленинградская ул., , Застройщик: Ресурс.
Жилой комплекс ‒ многоквартирный двухсекционный жилой дом, переменной этажности: от 8 до17 этажей. Особенностью дома в части планировочных решений является преобладание компактных квартир «евроформата» (с объединенной кухней и гостиной).
Микрорайон, в котором расположен дом, характеризуется хорошо развитой инфраструктурой: продовольственные магазины, аптеки, поликлиника, банки, почтовое отделение, ателье, ремонт обуви, кафе находятся в шаговой доступности. В непосредственной близости от дома находятся два детских сада и новый корпус школы, а также спортивная школа.
Из ЖК легко добраться в любую точку города ‒ до остановок общественного транспорта 3 минуты ходьбы. Жилой дом расположен в некоторой отдаленности от оживленного шоссе в окружении малоэтажных домой, что позволяет сохранить атмосферу уюта и приватности в доме и на придомовой территории.
В доме собственная газовая котельная.

















