Продается 3-х комн. новостройка, , 9/17 эт
Обзор№ - 6969
| Стоимость | 6 833 000 |
|---|---|
| Название ЖК | Фамильный дом |
| Год постройки | 2024 |
| Жилая площадь | 39.18 |
| Площадь кухни, кв.м. | 10.89 |
| Этаж | 9 |
| Этажность | 17 |
| Комнат в квартире | 3 |
| Ремонт | Черновая отделка |
| Материал стен | кирпично-монолитный |
Адрес
| Населенный пункт | Ижевск |
|---|---|
| Улица | улица Е.М. Кунгурцева |
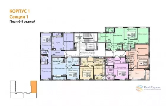
Квартира: 3 к 68,33 кв.м., 9 этаж в комплексе Фамильный дом, 1 очередь, корп.1, сдача: 4кв. , этажей: 17, адрес Ижевск г., Кунгурцева Е.М. ул., , Застройщик: Рентек.
Жилой комплекс расположен на улице Воткинское шоссе рядом со стадионом Буммаш, в Индустриальном районе города Ижевска. Усиленный каркас здания возводится по монолитной железобетонной технологии домостроения. Фасады выполнены из декоративной штукатурки и имеют многослойную конструкцию.
Развитая социальная инфраструктура комплекса обусловлена наличием в пешей доступности нескольких действующих средних школ, детских садов и поликлиники. Помимо общественных учреждений, вблизи района находятся кафе и торговые центры.

















