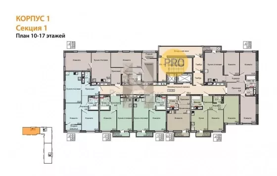
Продается 3-х комн. новостройка, 71 кв.м., 14/17 эт
Обзор№ - 8282
| Стоимость | 5 100 000 |
|---|---|
| Год постройки | 2026 |
| Площадь, кв.м. | 71 |
| Жилая площадь | 35.6 |
| Площадь кухни, кв.м. | 18 |
| Этаж | 14 |
| Этажность | 17 |
| Комнат в квартире | 3 |
| Материал стен | кирпично-монолитный |
Адрес
| Населенный пункт | Ижевск |
|---|---|
| Улица | улица Постольская |
Квартира: 3 к 71,00 кв.м., 14 этаж в комплексе Нео, 1 очередь, корп.1, сдача: 1кв. , этажей: 17, адрес Ижевск г., Баранова ул., , Застройщик: Комос.
Жилой комплекс расположен в Ленинском районе Ижевска, на улице Баранова, в шаговой доступности от Молл Матрица. Вблизи жилого комплекса находятся школа 51, детские сады 82, 144, ресторан быстрого питания "Вкусно и точка", супермаркеты "Магнит" и "Пятёрочка", аптеки, остановки общественного транспорта.
От ЖК легко добраться до горнолыжного курорта Чекерил, красивого и благоустроенного сквера оружейника Драгунова, живописной набережной Ижевского пруда и центральной части города.
Жилой комплекс выполнен в выдержанной Скандинавской стилистике. Цвета фасада - спокойные и ненавязчивые: тёмно-коричневый, мягкий белый с графитовыми вставками и молочно-шоколадный.
В квартирах предусмотрены тёплые лоджии или открытые балконы с металлическим ограждением. На первом этажей второй секции предусмотрены коммерческие.
Двор по индивидуальному проекту ландшафтного дизайна, предусматривает множество красивого, экологичного оборудования для игр и отдыха жителей всех возрастов. Для самых маленьких жителей дома - уникальный песочник, как отдельный элемент благоустройства. Для ребят постарше - современное игровое оборудование из высококачественных полимеров и натурального дерева с металлическими элементами. Особую изюминку облику двора придадут уютные зоны отдыха и настоящий амфитеатр с интегрированными в него сетчатыми гамаками. Покрытие детских и спортивных площадок комбинированное травмобезопасное, с использованием натуральных материалов и резиновой крошки. Пешеходные дорожки отделаны брусчаткой и тротуарной плиткой. Тротуары отделяем от проездов бордюрами и участками озеленения.
Удобные дизайнерские скамейки, деревянные лежаки и продуманное многоуровневое освещение двора позволят гулять и отдыхать с комфортом в любое время суток. А для безопасности жильцов, все гостевые парковки расположены на внешнем периметре комплекса, формируя тем самым красивый и уютный "двор без машин". Доступ автотранспорта во двор ограничен и возможен только для автомобилей и техники специальных служб.
На территории жилого комплекса будет высажено много зелени: сирень венгерская, бирючина и рябина обыкновенная, вейник остроцветковый, смородина альпийская, спирея японская, посевы газонных и злаковых трав.
В жилом комплексе расширенный пакет системы Умный Дом. Это целый перечень оборудования, объединенного в единый сервис, функциями которого можно управлять удалённо, прямо с вашего смартфона: бесключевой доступ в подъезд, видеодомофон с функцией Face ID, автоматизированный сбор и передача показаний счётчиков.

















