Продается 2-х комн. новостройка, , 14/17 эт
Обзор№ - 9429
| Стоимость | 6 244 042 |
|---|---|
| Название ЖК | Талисман |
| Год постройки | 2025 |
| Жилая площадь | 29.84 |
| Площадь кухни, кв.м. | 10.69 |
| Этаж | 14 |
| Этажность | 17 |
| Комнат в квартире | 2 |
| Ремонт | Черновая отделка |
| Материал стен | кирпично-монолитный |
Адрес
| Населенный пункт | Ижевск |
|---|---|
| Улица | улица Новая Восьмая |
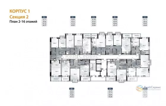
Квартира: 2 к 61,69 кв.м., 14 этаж в комплексе Талисман, 1 очередь, корп.1, сдача: 1кв. , этажей: 17, адрес Ижевск г., Холмогорова ул., , Застройщик: Федерация.
Жилой комплекс расположен за ТЦ Талисман. В трех минутах ходьбы от ТЦ, 400 метров до остановки ул. Холмогорова. В 10 минутах ходьбы от ТЦ Сити и главных магистралей города – ул. Пушкинской и ул. Холмогорова. Рядом с домом есть лес, где можно неспешно прогуляться или активно провести время, занимаясь скандинавской ходьбой или пробежкой. Отсутствие машин во дворе, обилие зелени, освещение, безбарьерная среда и зонированная придомовая территория – все это позволит наслаждаться отдыхом с детьми или просто гулять в тишине.
В жилом комплексе реализовано более 25 видов планировок. Можно выбрать квартиру не только по формату и количеству комнат, но и количеству окон, наличию дополнительных санузлов и комнат хранения.
40 соток благоустроенной придомовой территории с собственной дорогой от ТРК. Двор без машин освобождает пространство для зелени и детских игр. Зоны отдыха удалены от проезжей части.
Использование проверенных технологий строительства помогает вводить здания в эксплуатацию точно в срок. Экологичные материалы подобраны с заботой здоровье.

















