Продается 2-х комн. новостройка, , 1/8 эт
Обзор№ - 10339
| Стоимость | 6 526 944 |
|---|---|
| Название ЖК | ZNAK |
| Год постройки | 2024 |
| Жилая площадь | 24.65 |
| Площадь кухни, кв.м. | 18.27 |
| Этаж | 1 |
| Этажность | 8 |
| Комнат в квартире | 2 |
| Ремонт | Черновая отделка |
| Материал стен | кирпичный |
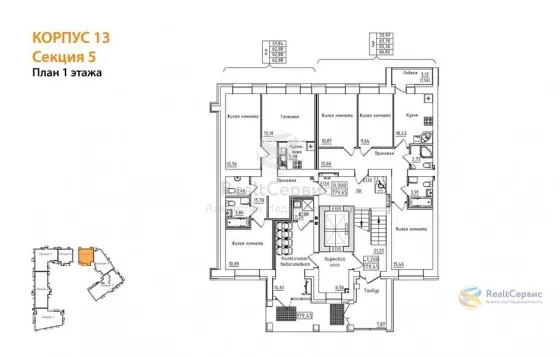
Квартира: 2 к 62,88 кв.м., 1 этаж в комплексе ZNAK, 1 очередь, корп.13, сдача: 3кв. , этажей: 8, адрес Первомайский село, Архитектора Сергея Макарова ул., д. 4/3, Застройщик: Железно.
Жилой комплекс представляет собой комплексную застройку, состоящую из кирпичных зданий высотой 8 этажей. Район имеет прекрасную экологию. Проектировщикам удалось гармонично соединить красивый лес с центральным парком и зеленым бульваром. Он расположен в самом сердце поселка и переходит в пешеходные парковые зоны. Весь проект пронизывают зеленые эко-пространства. Здесь размещены общественные пространства для отдыха, прогулок, занятий спортом, а также детские площадки. Архитектура, аллеи, элементы ландшафтного дизайна и скульптуры делают облик жилого комплекса по-настоящему неповторимым.
В домах независимые газовые котельные и поквартирная регулировка температуры, собственная управляющая компания. Для удобства жителей застройщиком было создано приложение «Мажордом» — это умный мобильный дворецкий. Он поможет включать и выключать свет, открывать дверь в подъезде, оперативно связываться с управляющей компанией или соседями, наблюдать за детьми во дворе через видеокамеру, передавать данные счётчиков и многое другое.
ЖК имеет обширную инфраструктуру и удобную транспортную доступность, наземные и многоуровневые парковки. Попасть в город будущего будет легко как на личном, так и на общественном транспорте. В шаговой доступности школа на 1500 мест и 2 детских сада на 360 детей, расположенные в парковой зоне, на закрытой от проезда территории, также торговый центр, кафе и супермаркеты.
Территория внутреннего двора полностью изолирована и свободна от проезда машин. Игровые и спортивные площадки с безопасным покрытием, парк развлечений и природный парк, стадион, кружки и спортивные секции, языковые, музыкальные и художественные студии — все это создаст идеальные условия для развития юных жителей. Спортивные площадки, волейбольные и футбольные поля, каток, скейт-парк и роллердром. В парковой зоне найдется место для занятий йогой и пеших прогулок, а в беседках — для интеллектуальных игр.



















