Продается 2-х комн. новостройка, , 11/17 эт
Обзор№ - 11282
| Стоимость | 5 556 000 |
|---|---|
| Название ЖК | Покровский |
| Год постройки | 2025 |
| Жилая площадь | 24.5 |
| Площадь кухни, кв.м. | 19.9 |
| Этаж | 11 |
| Этажность | 17 |
| Комнат в квартире | 2 |
| Ремонт | Черновая отделка |
| Материал стен | кирпично-монолитный |
Адрес
| Населенный пункт | Ижевск |
|---|---|
| Улица | улица 10 лет Октября |
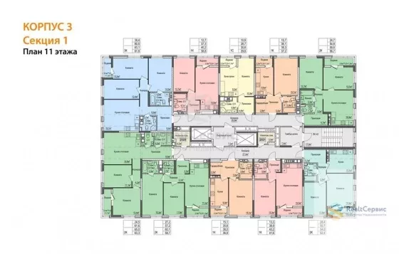
Квартира: 2 к 63,30 кв.м., 11 этаж в комплексе Покровский, 3 очередь, корп.3, сдача: 3кв. , этажей: 17, адрес Ижевск г., Серова ул., , Застройщик: Комос.
Дом находится в глубине квартала, в стороне от проезжей части. Фасады выполнены из натурального керамического кирпича баварской кладки, со стильными вставками графитового цвета из декоративной штукатурки по системе СФТК. Из окон квартир будут открываться замечательные виды на близлежащий сосновый лес и среднеэтажную жилую застройку.
В шаговой доступности находятся: остановки общественного транспорта, школы №№72 и 93, детские сады №№52, 54, 63, 101 и 238, торговые центры "Эльгрин", "Омега" и "Столица", фитнес клубы "Платформа" и "Омега-фитнес", множество аптек, хозяйственных и продовольственных магазинов.
Все квартиры выполнены в современном и практичном евроформате, с большими кухнями-столовыми и мастер-спальнями. В некоторых квартирах, в спальне, будут свои собственные санузел и гардероб.
Предусмотрена периметральная поквартирная разводка труб отопления в конструкции пола. Устанавливаем стильные стальные панельные радиаторы с нижней подводкой.
Стены подготовлены под оклейку обоями. На полу выполнена полусухая стяжка со звукоизолирующим слоем. Водопровод и канализация заводится в помещение с установкой заглушек, подводка до сантехнического оборудования не выполняется, устанавливаются счётчики воды.
В квартирах комплекса устанавливаются клапаны приточной вентиляции, обеспечивающие оптимальный режим притока свежего воздуха в помещение. Приточный клапан оснащен системами шумоизоляции и фильтрации воздуха.
Устанавливаются надежные, красивые металлические входные двери, не требующие замены. В каждой двери предусмотрен один замок и одна щеколда. Для обеспечения тепло и звукоизоляции полости двери и дверной коробки заполняются негорючим минеральным утеплителем.
Парадные и лифтовые холлы первых этажей выполнены по авторскому дизайн-проекту. В отделке используем современные, натуральные материалы. Установлены окна с повышенными звуко- и теплоизоляционными показателями.
На первых этажах предусмотрены вместительные колясочные с поддонами для мытья колёс и лап животных, стильные, комфортные лифты. Поручи и кнопки управления внутри и снаружи лифтов выполняем на уровне, достаточном, чтобы до них смог дотянуться ребёнок или жители с ограниченными возможностями.
Уютные дворы без машин выполнены в эко-тематике. На детских площадках устанавливается долговечное, экологически чистое игровое оборудование.
В отделке дворовых территорий используем только натуральные материалы. Пешеходные бульвары мостятся брусчаткой с декоративными элементами из дерева и зеленых насаждений.
В домах жилого комплекса реализуется новый, расширенный пакет системы Умный Дом. Это целый перечень оборудования, объединенного в единый сервис.
Бесключевой доступ в подъезд. Больше нет необходимости носить с собой ключи от домофона. Для того, чтобы попасть в подъезд своего дома, нужен только смартфон.
Видеодомофон с функцией Face ID. Рядом с входной дверью в подъезд расположена цифровая панель с камерой видеонаблюдения и возможностью считывания лица и силуэта входящего. Собственники квартир смогут внести свои данные в приложение, после чего система Умного Дома, определив их при входе, самостоятельно откроет дверь в подъезд.
На территории и в подъездах жилого комплекса установлены камеры видеонаблюдения.
Автоматизированный сбор и передача показаний счётчиков.
Управлять всеми функциями умного дома можно будет с помощью мобильного приложения жильца. Приложение приобретёт и внедрит управляющая компания, которая примет на баланс жилой комплекс.
Дополнительно можно приобрести расширенную систему «Умного дома», включающую в себя: датчики движения; датчики разбития стекла; датчик открытия окна и дверей; датчик дыма с температурным сенсором; датчик обнаружения затопления; беспроводную домашнюю звуковую сирену; пульт управления с тревожной кнопкой; радиоуправляемую умную розетку со счётчиком энергопотребления; Wi-Fi IP-видеокамеру с датчиком движения; радиоконтроллер для управления бытовыми приборами до 3 кВт.
Проект представляет собой продуманную идею жилого микрорайона, где природа гармонично интегрирована в пространство жилых кварталов. Центральную часть микрорайона займёт огромное общественное пространство - разветвлённая пешеходная аллея, своего рода "зеленая река", которая естественным образом объединяет между собой территории жилых домов. Здесь будет много деревьев и газонов, пешеходных тротуаров и площадок для прогулок и отдыха жильцов.



















